Как подготовить документацию по СКС для крупных корпоративных проектов
Содержание:
- Зачем нужна документация по СКС в корпоративных проектах
- Основные элементы документации СКС
- Стандарты и требования к оформлению схем
- Процесс сбора и актуализации данных
- Рекомендации по ведению документации и её хранению
Для крупных корпоративных проектов документация особенно важна, так как сеть включает множество рабочих станций, серверов, точек доступа и коммутационного оборудования, часто распределённых по нескольким этажам или филиалам. Без структурированной документации управление такой сетью становится сложным, а ошибки при подключении или модернизации могут дорого стоить.
Кроме того, правильно оформленная документация обеспечивает соответствие стандартам, облегчает взаимодействие с подрядчиками и поставщиками оборудования, а также является важным элементом при проведении аудитов и сертификации корпоративной инфраструктуры. В этой статье рассмотрим ключевые аспекты подготовки документации по СКС для крупных проектов.
Зачем нужна документация по СКС в корпоративных проектах
Документация по структурированной кабельной системе (СКС) является основой для эффективного управления корпоративной сетью. Она позволяет IT-отделу иметь полное представление о топологии сети, расположении кабельных трасс, коммутационного оборудования и рабочих станций, что значительно упрощает обслуживание и устранение неполадок.

В крупных корпоративных проектах сеть охватывает десятки и сотни этажей, множество серверных, распределительных шкафов и филиалов. Без полной документации специалисты сталкиваются с трудностями при поиске проблемных участков, что увеличивает время простоя и риск ошибок при модернизации или расширении сети.
Документация помогает поддерживать стандарты и порядок в инфраструктуре. Она фиксирует категорию кабелей, типы розеток, маркировку портов и патч-панелей, что обеспечивает соответствие TIA/EIA, ISO/IEC и внутренним стандартам компании. Это особенно важно при проведении аудитов, сертификации или инспекций со стороны регулирующих органов.
Кроме того, наличие полной документации облегчает взаимодействие с подрядчиками и поставщиками оборудования. Чёткие схемы, планы и спецификации позволяют минимизировать ошибки при монтажных работах, закупке кабельных трасс и коммутационного оборудования, а также ускоряют внедрение новых технологий в корпоративную сеть.
Наконец, документация служит основой для планирования модернизации и расширения сети. Она позволяет оценить текущее состояние инфраструктуры, выявить узкие места и подготовить план по увеличению пропускной способности или внедрению новых технологий без нарушения работы существующих сервисов.
Основные элементы документации СКС
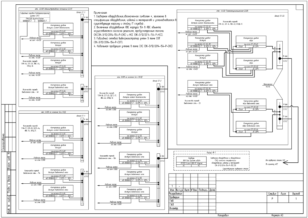
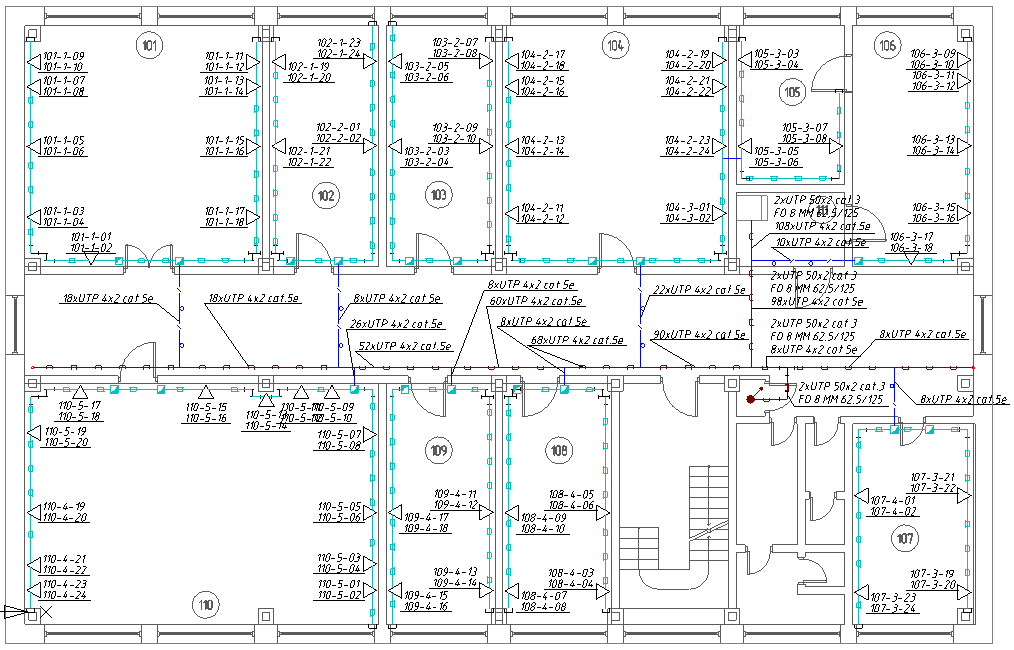
Документация структурированной кабельной системы (СКС) должна включать все элементы, необходимые для полного понимания инфраструктуры, её обслуживания и модернизации. Полнота и структурированность документации позволяют сократить время на поиск проблемных участков и повышают надёжность корпоративной сети.

Основные элементы документации СКС:
Элемент документации | Описание | |
Схемы топологии сети | Графическое отображение соединений между серверными, коммутаторами и рабочими станциями | Позволяет быстро ориентироваться в инфраструктуре и выявлять узкие места |
Планы кабельных трасс | Детализированные маршруты прокладки кабелей по этажам и помещениям | Облегчают монтаж, ремонт и модернизацию сети |
Маркировка портов и кабелей | Уникальные идентификаторы для патч-панелей, розеток и кабелей | Упрощает диагностику и замену компонентов без ошибок |
Спецификация оборудования | Список используемых коммутаторов, маршрутизаторов, патч-панелей, розеток | Обеспечивает совместимость и правильное обслуживание сети |
Отчёты о тестировании | Результаты проверки кабельных линий и оборудования | Помогает выявлять проблемные сегменты и планировать профилактику |
Регламенты эксплуатации и обслуживания | Правила подключения, модификации и тестирования сети | Гарантирует соблюдение стандартов и минимизацию ошибок при обслуживании |
Комплексное включение всех этих элементов в документацию обеспечивает прозрачность работы сети, упрощает обучение персонала и снижает риски простоев при эксплуатации или модернизации корпоративной ЛВС.
Стандарты и требования к оформлению схем
Правильное оформление схем структурированной кабельной системы (СКС) является ключевым элементом документации, позволяя быстро ориентироваться в инфраструктуре, упрощать обслуживание и планировать модернизацию. Для крупных корпоративных проектов важно придерживаться общепринятых стандартов и внутренних требований компании.

Основные стандарты и требования к оформлению схем СКС:
- Использование международных стандартов. Применяйте символику и обозначения согласно TIA/EIA-606, ISO/IEC 11801 и IEEE, чтобы схемы были понятны инженерам и подрядчикам.
- Чёткая графическая визуализация. Все кабельные трассы, патч-панели, розетки и коммутаторы должны быть отображены ясно и однозначно, без перегруженности схемы.
- Маркировка всех элементов. Каждая розетка, порт, кабель и коммутатор должны иметь уникальные идентификаторы для облегчения диагностики и обслуживания.
- Разделение по уровням и сегментам сети. Схемы должны показывать магистральные линии, горизонтальные подсистемы, серверные и рабочие сегменты отдельно для лучшей структурности.
- Обновление и актуализация. Все изменения в сети должны отражаться на схемах в актуальном виде, чтобы документация соответствовала реальному состоянию инфраструктуры.
- Использование унифицированной цветовой схемы. Цветовое выделение кабелей и сегментов повышает наглядность схем и упрощает понимание структуры сети.
Соблюдение этих требований позволяет создать удобные для эксплуатации и обслуживания схемы СКС, повышает надёжность сети и снижает вероятность ошибок при работе с кабельной инфраструктурой.
Процесс сбора и актуализации данных
Сбор и актуализация данных — важный этап подготовки документации по структурированной кабельной системе (СКС). Только точная и актуальная информация позволяет IT-службе эффективно управлять сетью, проводить модернизацию и быстро устранять неисправности.

Первый шаг в процессе — инвентаризация существующей инфраструктуры. Необходимо собрать данные о всех кабельных трассах, розетках, патч-панелях, коммутаторах и других сетевых устройствах. При этом важно фиксировать категории кабелей, длину линий, типы разъёмов и их расположение по этажам и помещениям.
Следующий этап — проверка и тестирование собранной информации. Все кабельные линии и порты должны быть протестированы на целостность, скорость передачи данных и соответствие стандартам. Это позволяет выявить устаревшие или повреждённые сегменты, которые необходимо отметить в документации.
После проверки информации данные заносятся в централизованную систему документации. Важно использовать единые форматы и шаблоны, чтобы информация была удобна для чтения и анализа. Маркировка кабелей, портов и оборудования должна совпадать с указанной на схемах, что минимизирует ошибки при обслуживании.
Наконец, актуализация данных проводится регулярно или при изменениях в сети. Любые добавления новых кабелей, оборудования или изменений в конфигурации должны сразу фиксироваться в документации. Это обеспечивает актуальное состояние инфраструктуры и позволяет планировать дальнейшее развитие сети без риска ошибок и простоев.
Рекомендации по ведению документации и её хранению
Правильное ведение и хранение документации по структурированной кабельной системе (СКС) является залогом удобного управления корпоративной сетью и быстрого реагирования на возникающие проблемы. Чётко организованная документация позволяет экономить время IT-специалистов и снижает риск ошибок при обслуживании или модернизации сети.

Основные рекомендации:
- Используйте централизованное хранилище. Все схемы, отчёты и спецификации должны храниться в единой базе данных или системе документооборота, доступной для IT-службы и ответственных подрядчиков.
- Применяйте унифицированные форматы и шаблоны. Это обеспечивает одинаковое оформление схем, отчётов о тестировании и спецификаций оборудования, упрощая восприятие информации.
- Регулярно обновляйте документацию. Любые изменения в сети — добавление кабелей, оборудования или модификации конфигурации — должны сразу фиксироваться.
- Обеспечьте резервное копирование. Электронные версии схем и документов должны регулярно сохраняться на резервных носителях или в облачных хранилищах, чтобы предотвратить потерю информации.
- Ведите историю изменений. Фиксируйте даты и описание всех изменений, чтобы отслеживать эволюцию сети и иметь возможность быстро выявлять причины проблем.
- Обеспечьте удобный доступ для сотрудников. Документация должна быть доступна ответственным специалистам в любое время, чтобы ускорить диагностику и обслуживание сети.
Соблюдение этих рекомендаций позволяет поддерживать документацию СКС в актуальном состоянии, упрощает управление сетью и снижает вероятность ошибок при её эксплуатации.
Надёжная и структурированная документация становится ключевым инструментом для крупных корпоративных проектов, обеспечивая прозрачность инфраструктуры, эффективное обслуживание и планомерное развитие сети.
Читайте также:
- Преимущества использования оптоволокна в локальных сетях крупных компаний
- Как обеспечить совместимость оборудования разных производителей в ЛВС
- Типы архитектур ЛВС и их применение в бизнес-решениях
- Как провести аудит существующей кабельной системы и выявить проблемы
- Как выбрать коммутаторы для корпоративной локальной сети
