Особенности проектирования локальной сети для корпоративных клиентов
Содержание:
- Анализ требований бизнеса и технических условий
- Выбор архитектуры сети и топологии
- Подбор оборудования и кабельной инфраструктуры
- Настройка маршрутизации, коммутаторов и VLAN
- Обеспечение безопасности и защиты данных
- Тестирование, обслуживание и масштабирование сети
Ключевым аспектом является масштабируемость и гибкость сети. Корпоративные клиенты часто расширяют офисы, внедряют новые сервисы и облачные решения, поэтому проектируемая инфраструктура должна легко адаптироваться к изменяющимся условиям и обеспечивать высокий уровень отказоустойчивости.
Кроме того, при проектировании локальной сети учитываются вопросы безопасности, совместимость оборудования, резервирование каналов передачи данных и интеграция с другими системами предприятия. Это позволяет создать инфраструктуру, которая поддерживает бизнес-процессы и защищает корпоративные данные.
Анализ требований бизнеса и технических условий
Первым шагом при проектировании локальной сети для корпоративного клиента является анализ требований бизнеса и технических условий. На этом этапе важно определить цели и задачи, которые должна решать сеть, а также особенности работы компании, включая количество пользователей, типы используемых приложений и объем передаваемых данных.
Следующий аспект анализа — оценка текущей инфраструктуры и существующих ограничений. Это включает проверку существующих серверов, коммутаторов, кабельных линий и сетевого оборудования, а также выявление потенциальных узких мест, которые могут ограничивать производительность сети.
Не менее важным является определение требований к отказоустойчивости и масштабируемости. Корпоративные клиенты часто планируют рост компании или внедрение новых сервисов, поэтому проектируемая сеть должна легко расширяться, поддерживать резервные каналы связи и обеспечивать стабильную работу при высоких нагрузках.
Также на этапе анализа учитываются условия эксплуатации сети, включая особенности офисного здания, протяженность кабельной инфраструктуры, наличие помещений с повышенной электропомехой и требования к безопасности передачи данных. Грамотный анализ позволяет создать техническое задание, которое станет основой для последующего проектирования надежной и эффективной локальной сети.
Выбор архитектуры сети и топологии
Выбор архитектуры и топологии локальной сети является ключевым этапом проектирования, который определяет эффективность работы корпоративной сети, ее масштабируемость и надежность. Архитектура сети определяет, как взаимодействуют между собой серверы, рабочие станции, сетевые устройства и точки доступа, а топология — физическую или логическую схему соединений.

Существуют разные варианты архитектуры и топологии, каждая из которых имеет свои преимущества и ограничения. При выборе учитываются размер офиса, количество пользователей, требования к отказоустойчивости, производительность и возможности будущего расширения сети.
Сравнение основных типов топологий локальной сети:
Тип топологии | Преимущества | Ограничения | |
Звезда | Высокая отказоустойчивость, простота управления | Зависимость от центрального коммутатора | Офисы среднего и большого размера |
Кольцо | Равномерная нагрузка на сеть, предсказуемая маршрутизация | Сложность масштабирования, сбой одного узла может нарушить работу | Малые и специализированные сети |
Шина | Простота установки, низкая стоимость | Ограниченная пропускная способность, трудности при расширении | Небольшие офисы, временные сети |
Дерево (иерархическая) | Масштабируемость, удобное сегментирование сети | Сложность проектирования и кабельной разводки | Крупные корпоративные объекты с несколькими этажами |
Выбор правильной архитектуры и топологии позволяет создать эффективную, масштабируемую и надежную локальную сеть, которая отвечает требованиям бизнеса и обеспечивает стабильную работу информационных систем компании.
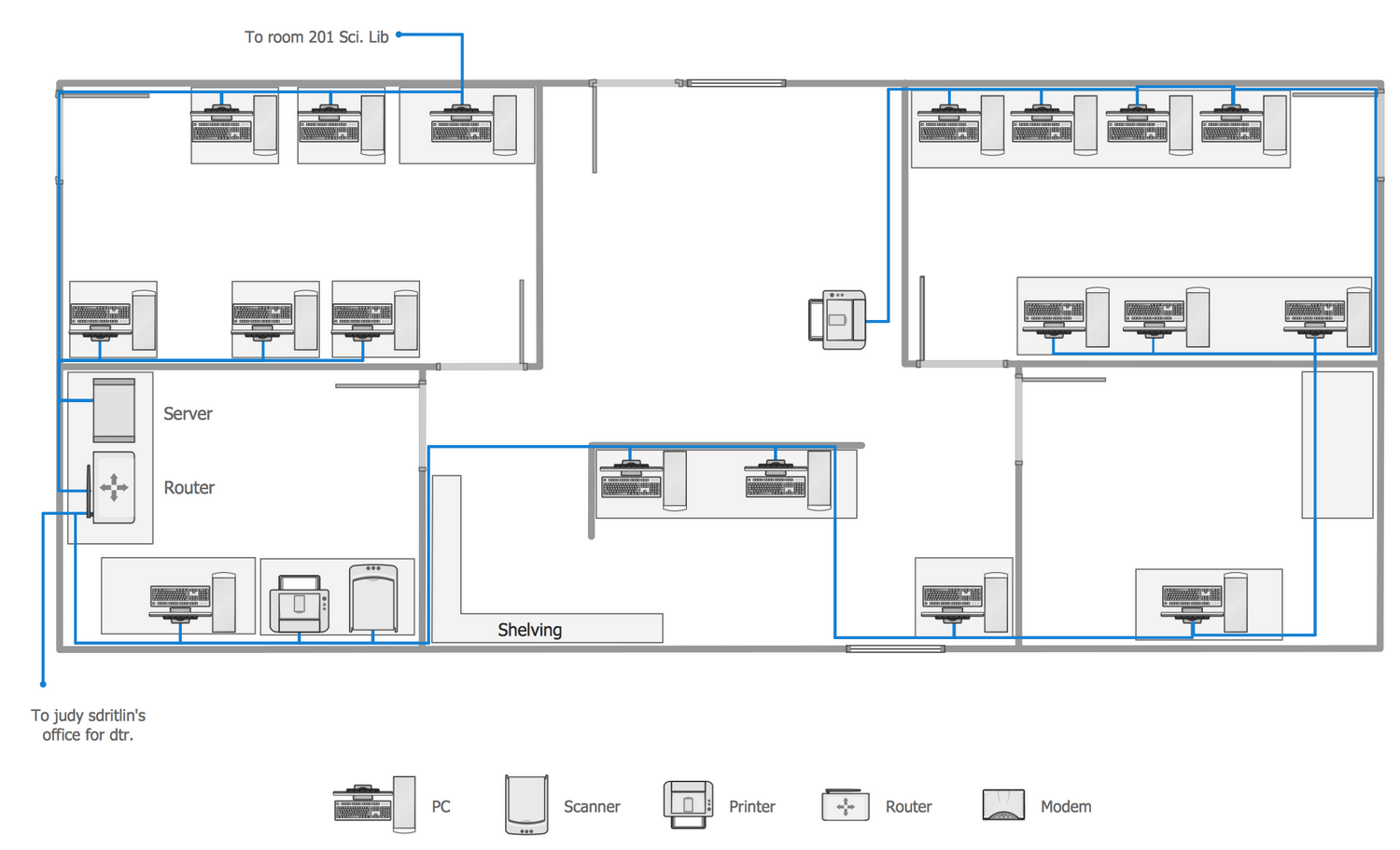
Подбор оборудования и кабельной инфраструктуры
Подбор оборудования и кабельной инфраструктуры является одним из ключевых этапов проектирования локальной сети для корпоративных клиентов. От правильного выбора устройств зависит производительность, надежность и масштабируемость сети, а также возможность интеграции с другими системами предприятия.

Основные аспекты подбора оборудования и кабельной инфраструктуры включают:
- Коммутаторы и маршрутизаторы — выбираются с учетом скорости передачи данных, количества портов, поддержки VLAN, PoE и возможностей масштабирования.
- Серверы и сетевые хранилища — определяются требования к емкости, скорости доступа и уровню отказоустойчивости.
- Точки доступа и Wi-Fi оборудование — подбираются с учетом плотности пользователей, площади покрытия и требований к беспроводной безопасности.
- Кабельная инфраструктура — выбор типа кабеля (витая пара, оптоволокно), категории (Cat5e, Cat6, Cat6a и выше) и схем прокладки с учетом дальности передачи и электромагнитных помех.
- Источники бесперебойного питания (ИБП)— обеспечивают стабильную работу критичных сетевых устройств при перебоях с электроснабжением.
- Сетевое оборудование для резервирования — дополнительные маршрутизаторы и коммутаторы для создания отказоустойчивых сегментов сети.
Комплексный подбор оборудования и кабельной инфраструктуры позволяет создать надежную и эффективную локальную сеть, которая соответствует требованиям бизнеса и готова к будущему расширению и внедрению новых сервисов.
Настройка маршрутизации, коммутаторов и VLAN
Настройка маршрутизации и коммутаторов является ключевым этапом при проектировании корпоративной локальной сети. Корректная конфигурация сетевых устройств обеспечивает стабильную передачу данных, эффективное распределение трафика и минимизацию задержек при обмене информацией между подразделениями компании.
Важной частью настройки является создание виртуальных локальных сетей (VLAN), которые позволяют логически разделить пользователей и ресурсы по функциям, отделам или уровням доступа. Это повышает безопасность, упрощает управление сетью и позволяет ограничивать распространение трафика между сегментами.
Маршрутизаторы конфигурируются для обеспечения оптимальных путей передачи данных как внутри локальной сети, так и между филиалами или с внешними сетями. Настройка протоколов маршрутизации и приоритетов трафика помогает снизить нагрузку на сеть и повысить скорость отклика приложений, критичных для бизнеса.
Правильная конфигурация коммутаторов, маршрутизаторов и VLAN также обеспечивает отказоустойчивость сети. В сочетании с резервированием каналов и устройств это позволяет поддерживать непрерывность работы корпоративной сети даже при выходе из строя отдельных элементов, что критично для бизнес-процессов предприятия.
Обеспечение безопасности и защиты данных
Обеспечение безопасности и защиты данных является одной из важнейших задач при проектировании локальной сети для корпоративных клиентов. Корпоративные сети обрабатывают конфиденциальную информацию, финансовые данные и персональные сведения сотрудников, поэтому защита от несанкционированного доступа, утечек и кибератак крайне важна.

Основные меры по обеспечению безопасности и защиты данных включают:
- Разделение сети на сегменты и VLAN — изоляция критичных подразделений и сервисов для ограничения доступа и снижения рисков распространения угроз.
- Настройка межсетевых экранов (firewall)— контроль входящего и исходящего трафика, блокировка нежелательных соединений и вредоносных пакетов.
- Шифрование данных — использование защищенных протоколов передачи (SSL/TLS, IPsec, HTTPS) и VPN для удаленного доступа сотрудников.
- Система аутентификации и разграничение прав пользователей — настройка учетных записей с минимально необходимыми правами доступа и двухфакторной аутентификации для критичных сервисов.
- Антивирусные и антивредоносные решения — установка программного обеспечения на серверы и рабочие станции для предотвращения заражения и утечки данных.
- Мониторинг и аудит сетевой активности— ведение журналов событий, отслеживание подозрительных действий и регулярная проверка состояния сети.
Комплексная реализация этих мер позволяет снизить риски киберугроз, защитить корпоративные данные и обеспечить надежную работу информационных систем предприятия.
Тестирование, обслуживание и масштабирование сети
Тестирование локальной сети является важным этапом после ее проектирования и развертывания. Оно позволяет убедиться в корректной работе всех компонентов, проверить пропускную способность каналов, функциональность коммутаторов, маршрутизаторов и опорных точек сети. Регулярное тестирование выявляет потенциальные узкие места и снижает вероятность сбоев в работе корпоративных сервисов.
Обслуживание сети включает мониторинг состояния оборудования, обновление программного обеспечения и прошивок, проверку кабельной инфраструктуры и резервного питания. Профилактическое обслуживание позволяет предотвращать неисправности, повышает надежность сети и продлевает срок службы оборудования.
Масштабирование сети необходимо для поддержания растущих потребностей компании. При увеличении числа сотрудников, внедрении новых сервисов или расширении офисов сеть должна быть готова к добавлению новых коммутаторов, маршрутизаторов, точек доступа и серверов без снижения производительности.
Важно также планировать масштабирование с учетом резервирования и отказоустойчивости. Расширение сети должно происходить без прерывания работы критичных бизнес-процессов и с минимальными ограничениями для пользователей.
Регулярное тестирование и обслуживание сети обеспечивают стабильную работу корпоративной инфраструктуры и минимизируют риски сбоев в работе информационных систем.
Продуманное масштабирование позволяет адаптировать сеть к росту компании, внедрению новых технологий и увеличению объема передаваемых данных, обеспечивая долгосрочную эффективность и надежность корпоративной локальной сети.
Читайте также:
- Как выбрать тип датчиков для автоматической пожарной сигнализации в офисе
- Какие нормативы регулируют установку АПС и СОУЭ в промышленности
- Как провести тестирование и проверку системы оповещения и управления эвакуацией
- Как правильно спроектировать ЛВС с учетом масштабируемости бизнеса


